RETCARE IN S

RETCARE IN S är en serie energieffektiva tilluftsaggregat för inomhusbruk för luftflödesområdet
0,5-3 m³/s.

RETCARE IN S tilluftsaggregat är kompakt och kräver minimal golvyta.

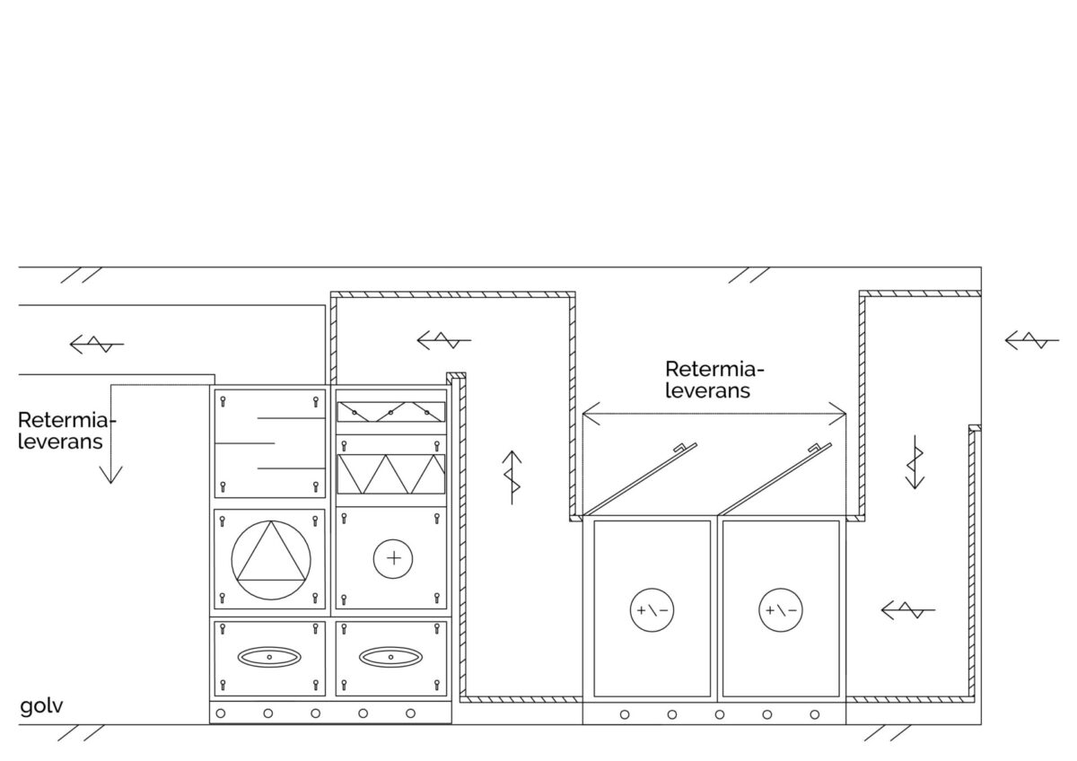
Installationsprincip för tilluftsaggregatet RETCARE IN S när VÅV implementeras med en luftintagshuv.

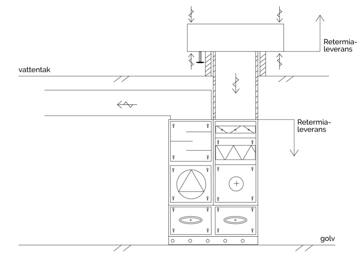
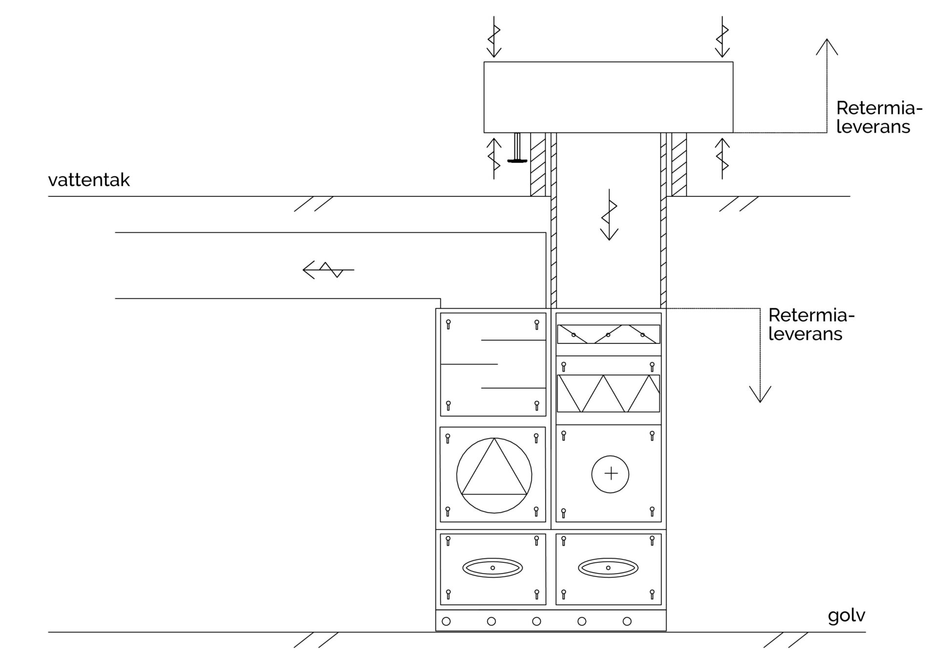
Installationsprincip för tilluftsaggregatet RETCARE IN S när VÅV implementeras med en Retermia Standard -nålvärmeväxlare i friskluftskanalen.

Fördelar

  • Litet utrymmesbehov. Ett aggregat med luftflödet på 1000 l/s kräver endast en kvadratmeter golvyta.
  • Den mest energieffektiva på marknaden. Mycket lågt internt motstånd innebär exceptionellt lågt SFP-värde: 0,5-0,8 kW/m³/s beroende på tryckfallen i kanalsystemet, VÅV- och kylbatterier.
  • Tyst. För de flesta applikationer krävs inget separat maskinrum.
  • Lätt att installera. RETCARE IN S aggregatet är lätt att transportera till installationsplatsen och snabbt att installera.
  • Tillförlitlig och underhållsvänlig. Underhåll kan också utföras på vintern.

Utrustningsval

RETCARE IN S finns tillgänglig i flera olika storlekar. Aggregatets storlek bestäms av luftvolymen. Fläktarna i aggregatet är vanligtvis utrustade med EC-motorer.

Tabell för preliminärt urval för tilluftsaggregat RETCARE IN S
luftflöde l/s
bredd mm
längd mm
höjd mm
vikt kg
500–1200
1600
800
2200
ca 400
1000–1700
1600
1100
2200
ca 450
1400–2400
2200
1100
2300
ca 550
1800–3100
2200
1400
2300
ca 600

Konstruktion och funktion

Aggregatet består av två vertikala sektioner och en bottensektion. Det kan transporteras i tre delar
till installationsplatsen.

I luftflödesriktningen innehåller den första vertikala sektionen avstängningsspjäll, filtrerings- och värmefunktionerna. Huvudfiltrets filtreringsklass kan väljas mellan M5 och F9.

Nålvärmeväxlare uppströms filtret fungerar också som G3-förfilter. Den andra vertikala delen innehåller fläkt- och ljuddämpningsfunktionerna. Bottendelen har ett uppsamlingstråg och
en dräneringsanslutning. Tilluften strömmar från en vertikal del till en annan i bottendelen.

Värmeväxlarna är nålvärmeväxlare med aluminiumnålar, aluminium- eller kopparrör och kopparfördelningsrör. Värmeåtervinnings- och kylbatterierna är placerade utanför aggregatet:
på taket, på ytterväggen, i en luftkammare eller i en kanal.

Aggregatet är utrustad med sensorer och fläkten med säkerhetsbrytare. Isolering är mineralull (isoleringstjocklek 50 mm).

Ute- och tilluftkanalsutgångarna är placerade ovanpå aggregatet och värmebatteriets röranslutningar är belägna bakom eller på sidan av aggregatet. Om vätskeflänsarna är placerade på baksidan av aggregatet kan aggregatets vänster-höger position (hänthet) ändras på arbetsplatsen genom att byta plats på de vertikala sektionerna. För vätskekopplingarna måste det lämnas tillräckligt med kopplingsutrymme mellan aggregatet och väggen (minst 200 mm).

Underhåll

Nålvärmeväxlare i enheterna rengörs genom dammsugning och högtryckstvätt.

Aggregatet servas från enhetens framsida. Alla funktionsdelar kan underhållas via serviceluckor.
För underhåll bör det finnas minst lika mycket fritt utrymme på aggregatets servicesida som aggregatets längd.

RETCARE IN S servas framifrån.