RETCARE OUT S är en vattentaksmonterad tilluftsaggregatsserie för luftvolymområdet 1,5-6,0 m³/s.
RETCARE OUT S -tilluftsaggregat monteras på byggnadens vattentak ovanpå en stödkonsol. Frisk luft tas in från sugdelens övre och nedre kant. Detta förhindrar att vindtrycket påverkar luftintaget eller tilluftsfläktens funktion.
Fördelar
- Besparingar på installationskostnader. RETCARE OUT S -tilluftsaggregat är avsett för installation på ett vattentak. Byggandet av ett maskinrum undviks. Aggregatet har en kompakt design och värmeförlusterna över höljet minimeras.
- Den mest energieffektiva på marknaden. Tack vare mycket låga interna resistanser är aggregatets SFP-värde exceptionellt lågt: typiskt 0,5-0,8 kW/m³/s beroende på tryckfallet i kanalsystemet. Internt tryckfall vid nominellt luftflöde är endast 250 Pa – med filtrering på F7-nivå och en nålvärmeväxlare som uppfyller ECO2018-kraven för termisk verkningsgrad. Aggregatets interna SFP är 0,36 kW/m³/s vid det nominella luftflödet.
- Lätt att installera. Aggregatet är enkelt och snabbt att installera och underhållsvänligt.
- Pålitlig. Friskluften tas in från sugdelens övre och nedre kant och vindtrycket påverkar inte luftintaget eller tilluftsfläktens funktion. Detta gör den till en utmärkt lösning även för krävande luftintagsförhållanden (kraftiga vindar, kraftigt regn, snöyra).
Utrustningsval
RETCARE OUT S finns i tre olika storlekar. Aggregatets storlek bestäms av luftvolymen. Fläktsektionen har två parallella fläktar med AC- eller EC-motorer. De exakta specifikationerna för utrustningen finns i de projektspecifika dimensioneringsdokumenten.
Tabell för preliminärt urval för aggregatet RETCARE OUT S | ||||||||
|---|---|---|---|---|---|---|---|---|
luftvolym l/s | bredd mm | längd mm | höjd mm | vikt kg | ||||
1000-2000 | 2310 | 4950 | 850 | ca 1400 | ||||
2000-3000 | 2310 | 5300 | 850 | ca 1500 | ||||
3000-4500 | 2310 | 5300 | 1050 | ca 1600 | ||||
4000-5500 | 2310 | 5800 | 1130 | ca 2000 | ||||
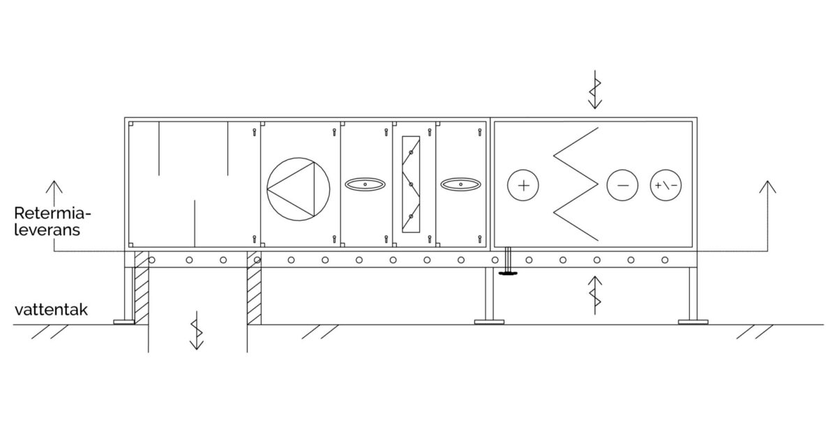
Konstruktion och funktion
Värmeväxlarna är nålvärmeväxlare med aluminiumnålar, aluminium- eller kopparrör och kopparfördelningsrör.
Värmeöverföringsytorna och filterväggen har formen av ett U, vilket ökar värmeväxlarnas och filtrets frontarea.
Aggregatet består av två delar som ansluts till varandra på plats. Fästmekanismerna är placerade utanför aggregatet. Sugdelen har nålvärmeväxlare och ett huvudfilter. Huvudfiltrets filtreringsklass kan väljas mellan M5 och F9.
Filtret har en plastram och är tillverkat av ett material som är lämpligt för utomhusbruk. Filtren låses mot monteringsramen med en filterspecifik låsmekanism. Filtren byts från ovan. Nålvärmeväxlarna uppströms huvudfiltret fungerar som G3-förfilter.
Fläktutrymmet har ett avstängningsspjäll, två parallella fläktar och en ljuddämpare. Anslutningen till tilluftskanalen sker vid ljuddämparen i aggregatets bottenplatta. Underhåll av fläktkomponenterna utförs genom serviceluckor som öppnas från sidan.
Anslutningen till tilluftskanalen och flänsarna på batteriet är placerade i aggregatets bottenplatta, skyddade från väder och vind. Polyuretan har använts som isolering för höljen.
Höljets U-värde är betydligt lägre än i ventilationsaggregat för inomhusinstallation.
Aggregatet är utrustat med sensorer och fläktar med säkerhetsbrytare.
Underhåll
Nålvärmeväxlare i aggregat rengörs genom dammsugning och högtryckstvätt.
Sugdelen är utrustad med ett uppsamlingstråg och en dräneringsanslutning. Fläktsektionens inre hölje kan torrtorkas.
Runt aggregatet, på de tre sidorna, bör serviceplattformar installeras för underhåll. Mellan aggregatets undersida och vattentaket (50 mm från vattentakets yta) monteras vindskyddsskivor på arbetsplats.
Sugdelen på tilluftsaggregatet RETCARE OUT S med serviceluckan öppen.
Underhåll av nålvärmeväxlarna och byte av filter i luftintagssektionen utförs
via en servicelucka som kan öppnas uppifrån.